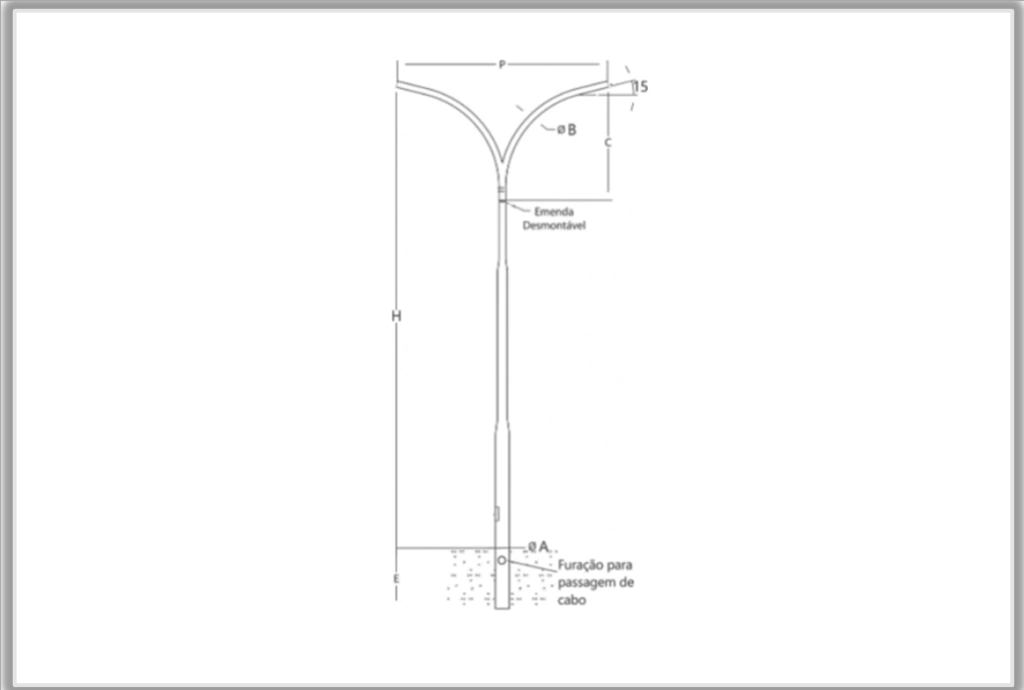
Postes telecônicos, fabricados em tubo de aço SAE 1010/1020, com seções cilíndricas de diâmetros variados e altura de 4 a 12 metros.
Opções: Poste Reto ou Curvo Simples ou Duplo.
Galvanizado a fogo conforme NBR 6323, opcional com pintura eletrostática em cores variadas.
Sistemas de fixação: flangeado, com base para fixação através de chumbadores.
Sistemas de fixação: engastado, sem base para engastamento ao solo.
